H2O
H2O nasce dal desiderio di unire design, tecnologia e benessere in un’unica esperienza. Ogni vasca e piscina è pensata per trasformare lo spazio esterno o interno in un luogo dedicato al relax, alla convivialità e all’estetica pura dell’acqua.
La nostra filosofia si fonda su un principio semplice: l’acqua è vita, ma anche materia da modellare con armonia e precisione. Per questo le collezioni H2O coniugano materiali di altissima qualità – come il Solid Surface e l’acciaio inox – con sistemi idromassaggio e airpool di ultima generazione, per un comfort che non rinuncia al design.
Ogni dettaglio, dalle superfici setose e igieniche ai rivestimenti in teak naturale o composito, è progettato per resistere nel tempo e mantenere intatta la sua bellezza. Le soluzioni modulari e personalizzabili permettono di adattare ogni realizzazione alle diverse esigenze architettoniche, trasformando ogni ambiente in un piccolo universo d’acqua.
H2O è il luogo in cui la tecnologia incontra l’emozione, dove il piacere del benessere si fonde con la precisione artigianale e il gusto contemporaneo.
CARATTERISTICHE PRINCIPALI
• DESIGN E ARTIGIANALITÀ
Linee essenziali, volumi equilibrati e finiture curate nei minimi dettagli. Ogni vasca H2O Cube è il risultato di un lavoro artigianale di precisione, in cui estetica e funzio- nalità si incontrano in perfetta armonia.
• MATERIALI DI ALTA QUALITÀ
Realizzate in Solid Surface, materiale composito compatto e non poroso, le vasche garantiscono resistenza, igiene e un effetto setoso al tatto. La struttura interna in acciaio inox assicura solidità e durata nel tempo, anche in ambienti esterni.
• COMFORT E TECNOLOGIA
Un’esperienza di idromassaggio completa, con getti d’acqua e d’aria regolabili per un effetto rilassante e rigenerante. Le sedute ergonomiche integrate favoriscono una postura naturale e un comfort assoluto.
• ILLUMINAZIONE E ATMOSFERA
L’illuminazione LED integrata valorizza le forme e crea suggestioni cromatiche, tra- sformando ogni momento in un’esperienza multisensoriale di benessere e relax.
• PERSONALIZZAZIONE E MODULARITÀ
Disponibili in diverse dimensioni e configurazioni, le vasche H2O Cube possono essere adattate a qualsiasi spazio e arricchite con rivestimenti in legno naturale o WPC, per una perfetta integrazione con l’ambiente circostante.
• EFFICIENZA E MANUTENZIONE
Ogni modello è dotato di impianto di filtraggio a sabbia, sistemi di ricircolo ottimizzati e componenti facilmente accessibili per una manutenzione semplice e duratura.
• ESTETICA SENZA TEMPO
La purezza delle forme e la qualità dei materiali rendono H2O Cube un elemento d’arredo capace di valorizzare ogni contesto, dal giardino privato alla spa profes- sionale.
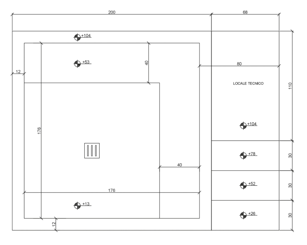
H2O CUBE 200 X 200
Dimensioni esterne
200 x 200 x 105 cm
Dimensioni interne
176 x 176 x 91.8 cm
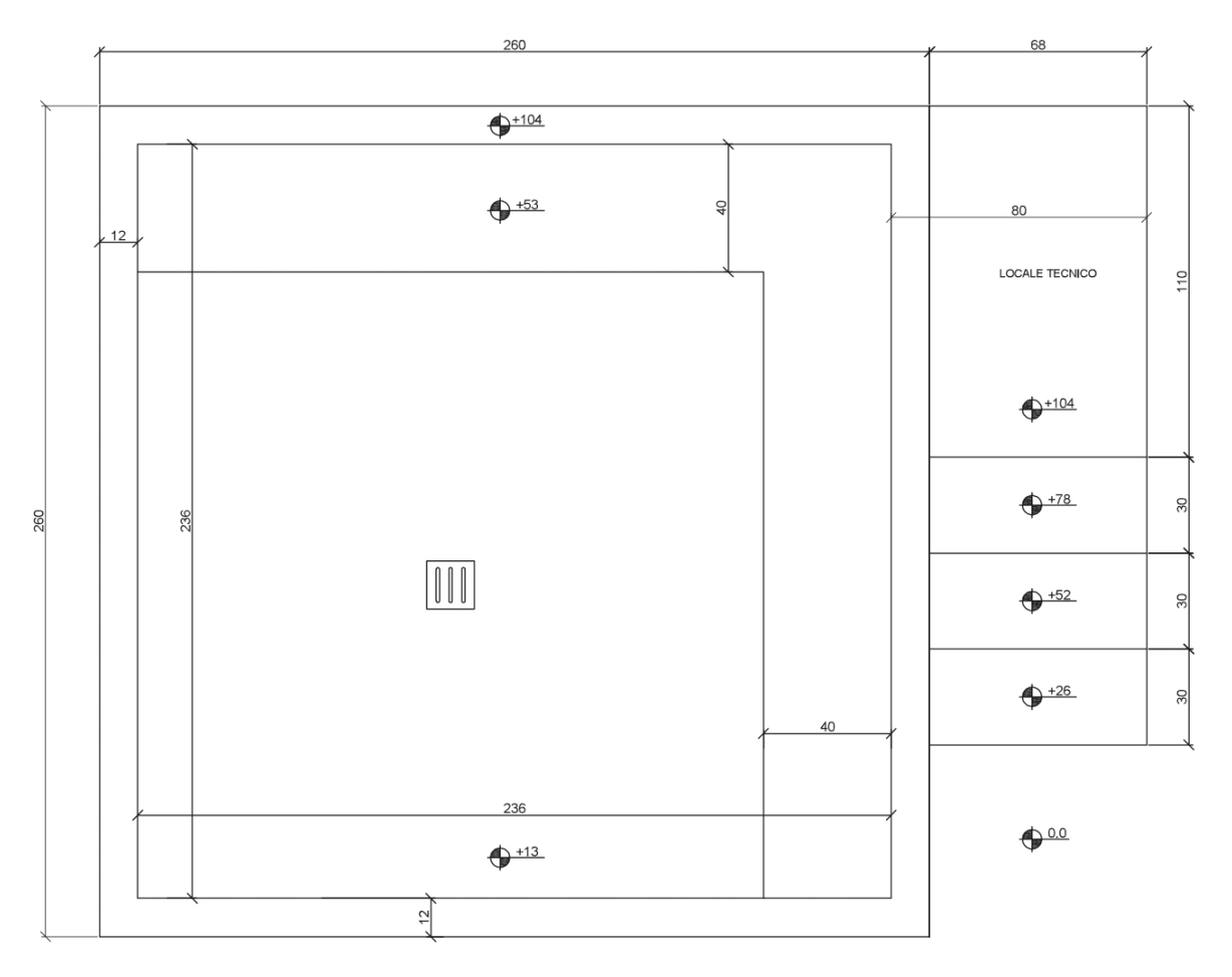
H2O CUBE 260 X 260
Dimensioni esterne
260 x 260 x 105 cm
Dimensioni interne
236 x 236 x 91.8 cm
SOLID SURFACE
Il Solid Surface è un materiale composito dalle eccellenti prestazioni meccaniche e dalle straordinarie caratteristiche funzionali. È composto prevalentemente da minerali naturali (principalmente triidrato di alluminio), resine acriliche e pigmenti, che ne determinano il colore e l’aspetto finale.
Grazie alla sua versatilità e all’elevata resistenza, il Solid Surface si è affermato nel settore edilizio sia per applicazioni interne che esterne. È particolarmente apprezzato per la sua capacità di assumere forme complesse e per l’aspetto setoso e caldo al tatto.
Essendo un materiale a tutta massa, può essere lavorato con macchinari tradizionali, proprio come il legno. Permette la realizzazione di superfici lineari, piane o curve, e le singole parti possono essere giuntate senza che le connessioni risultino visibili, ottenendo così elementi monoblocco di grandi dimensioni e dall’estetica impeccabile.
Il Solid Surface è estremamente resistente a urti e abrasioni. Eventuali graffi o segni di usura possono essere facilmente riparati, restituendo alla superficie la sua omogeneità visiva e tattile originaria.
Un ulteriore punto di forza è la sua igienicità naturale: la superficie non porosa e compatta impedisce l’assorbimento di liquidi e la proliferazione di batteri, rendendolo semplice da pulire e sanificare. Per queste caratteristiche, il Solid Surface è particolarmente indicato anche in ambienti sanitari e medicali, dove l’igiene è un requisito fondamentale.
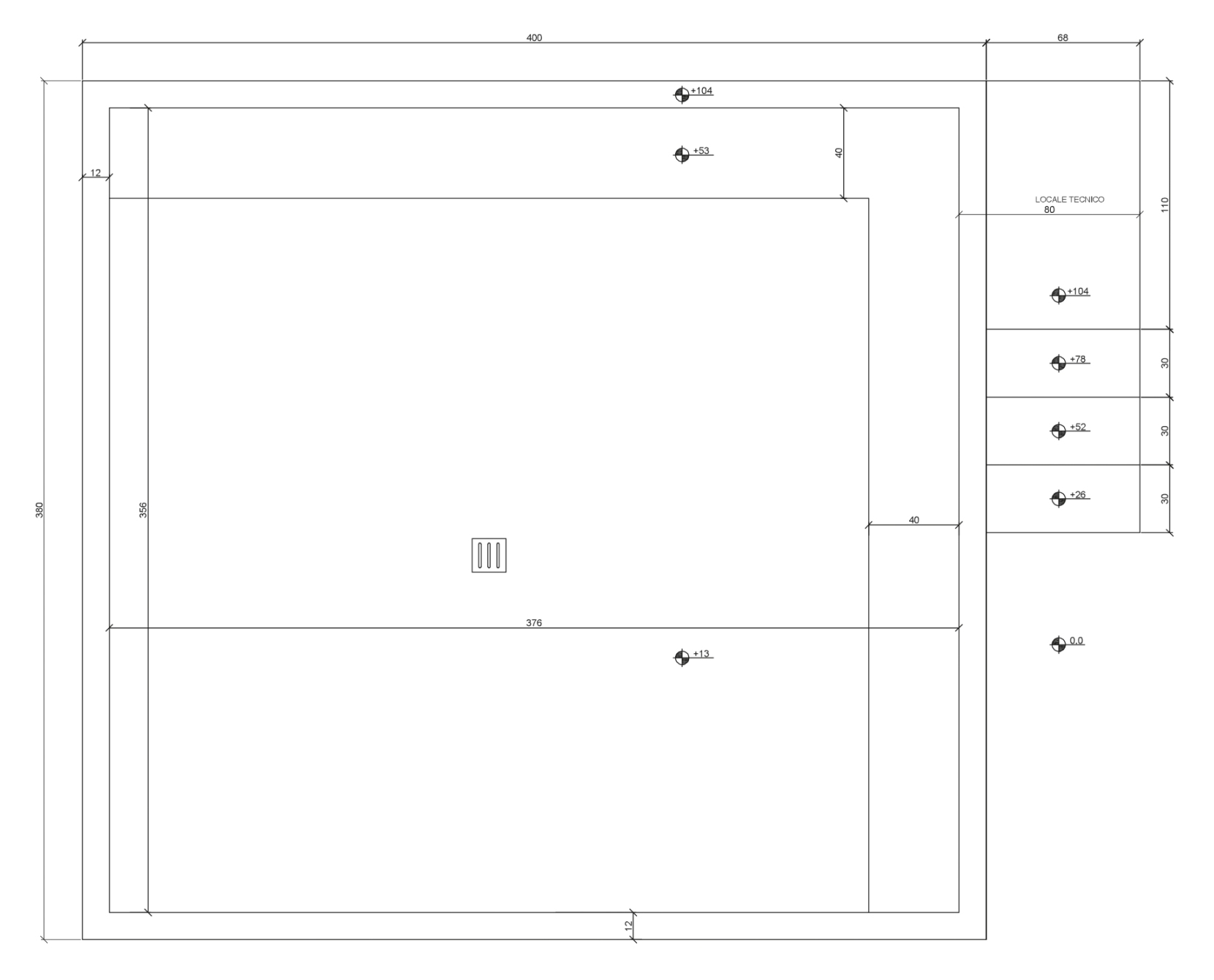
H2O CUBE 400 X 400
Dimensioni esterne
400 x 400 x 105 cm
Dimensioni interne
376 x 376 x 91.8 cm






